
Em 7 metros de altura e 9,5 metros de largura, "o dalmeny" por introduzir projetos é uma casa federação estilo do período em Sydney, Austrália, que levou apenas alguns meses para ser concluído. influenciados pela forma de ferro corrugado de icônico australiano barraco, o projeto é feito inteiramente com matérias-primas que proporcionam uma solução híbrida tech-ciência para o ambiente suburbano genérico.

retrovisor e perspectiva de jardim
Foram utilizadas diversas formas de tecnologia digital para conceituar e desenvolver a combinação instigante. isso é evidente na iluminação ambiente enseada, o trabalho de aço rendilhado, e aquecimento e resfriamento natural. uma série de bandas de metal dobradas moldar a forma que se irradia para o quintal, dando a estrutura uma aparência semelhante ao acordeão gigante. máquinas de corte a laser foram usado para produzir essas peças desiguais que replicam o casco duro gumes de um barco. a aglomeração rígida resultante permite iluminação arquitetural para ser incorporado dentro de suas fendas como a luz solar vindo de uma fachada envidraçada brilha sobre o interior branco e verde brilhante.

(À esquerda) terraço externo abaixo do teto estendida
(direita) em plano aberto sala de estar
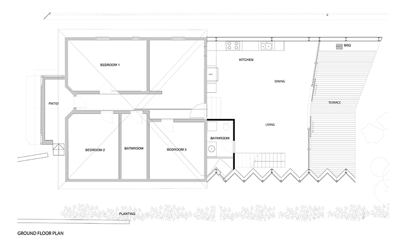
Para atender as necessidades de uma família jovem, os arquitetos organizou o piso plano aberto com dupla altura espaços públicos adjacentes ao gramado da frente. como a residência estende a inclinação do telhado existente para a parte traseira do local, uma área de estar, cozinha e master-mezanino suite são criados. dentro das áreas comuns, as crianças podem dever de casa na ilha de cozinha, enquanto os pais relaxam no terraço coberto. a partir daqui, uma escadaria de madeira manobras ao longo das bordas iluminadas para com os programas privados e pátio elevado.

(À esquerda) de madeira locais escada
(à direita) escadaria e dormindo loft

(À esquerda) teto
(direita) detalhe luz das escadas

corte transversal

plano térreo

http://www.enterprojects.net/#!dalmeny/c8sj
0 Comments:
Postar um comentário